Project Info

Project Type

Arredo

Location

Milano

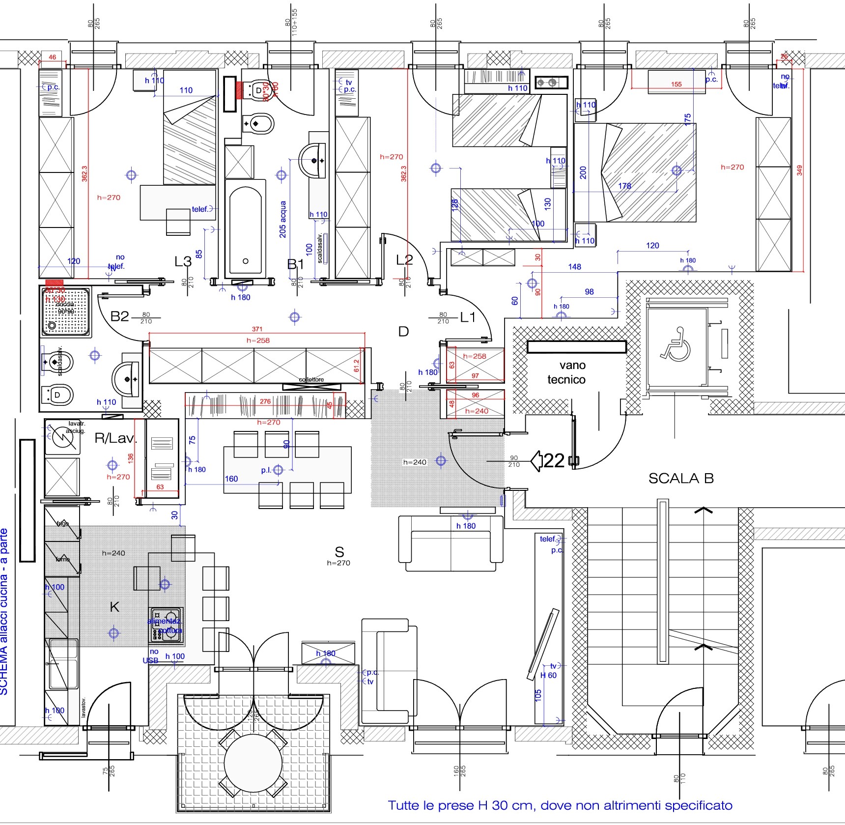
I circa 150 mq al terzo piano di un palazzo in fase di nuova costruzione vicino al centro di Milano hanno richiesto la ridistribuzione interna per l'improvvisa necessità di un secondo bagno, nonché l'ambientazione d'arredo degli interni. Le restrizioni delle posizioni degli scarichi e degli sfiati hanno dettato la distribuzione della zona cucina open space con controsoffitto a cubo.

 

sito: milano
intervento: modifiche distribuzione interna e consulenza d'arredo - residenza
progettista interno: silvia mancini
committente: privato
realizzazione: 2017
foto: silvia mancini